€ 420.000,00




Rif 1419 Caselle di Selvazzano
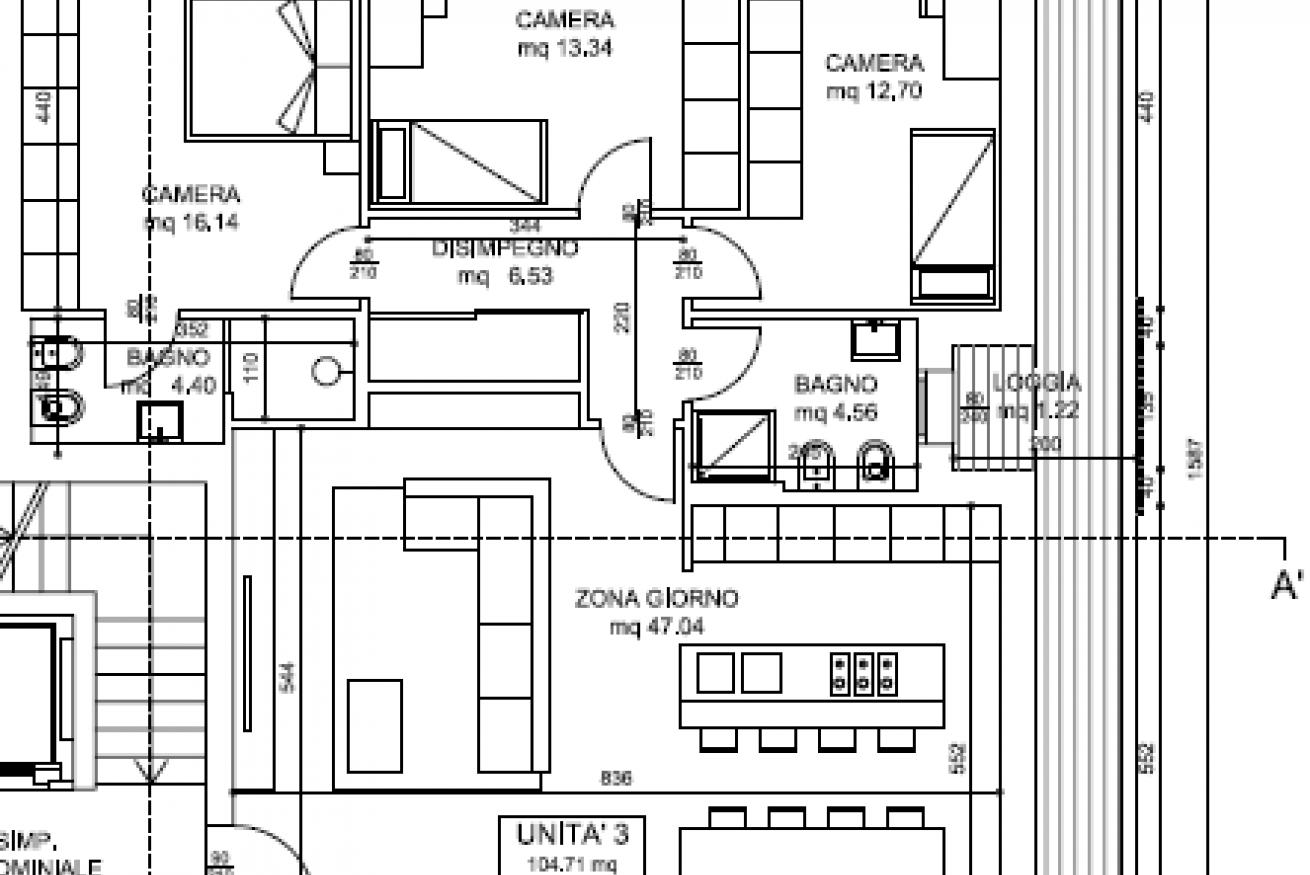
Appartamento - Selvazzano DentroDescrizione
3 camere da letto
2 bagni
100 m2
1° piano
All’interno di un nuovo complesso residenziale appena ultimato, questo appartamento al primo piano con ascensore rappresenta una soluzione abitativa moderna e luminosa, pensata per offrire comfort e qualità della vita quotidiana.
L’ingresso introduce alla zona giorno open space con angolo cottura, uno spazio accogliente e contemporaneo dove luce e funzionalità si incontrano creando l’ambiente ideale per vivere la casa e condividere momenti con famiglia e amici. Da qui si accede alla splendida terrazza di circa 40 mq, uno spazio esterno generoso e versatile, perfetto per pranzi all’aperto, momenti di relax o per creare un vero e proprio salotto all’esterno.
La zona notte è ben distribuita e garantisce privacy e tranquillità. Le tre camere offrono ambienti confortevoli e adattabili alle diverse esigenze della famiglia, mentre i due bagni assicurano praticità nella vita di tutti i giorni.
L’abitazione è dotata di soluzioni impiantistiche moderne pensate per garantire il massimo benessere abitativo. Il riscaldamento a pavimento assicura una diffusione uniforme del calore e un elevato livello di comfort, mentre la climatizzazione autonoma consente di mantenere sempre la temperatura ideale in ogni stagione.
La posizione è particolarmente interessante: l’immobile si trova in una zona residenziale tranquilla e ben servita, comoda ai principali servizi e ai collegamenti.
Una casa nuova, elegante e pronta da vivere, ideale per chi cerca spazi moderni e una grande terrazza da vivere ogni giorno.
L’ingresso introduce alla zona giorno open space con angolo cottura, uno spazio accogliente e contemporaneo dove luce e funzionalità si incontrano creando l’ambiente ideale per vivere la casa e condividere momenti con famiglia e amici. Da qui si accede alla splendida terrazza di circa 40 mq, uno spazio esterno generoso e versatile, perfetto per pranzi all’aperto, momenti di relax o per creare un vero e proprio salotto all’esterno.
La zona notte è ben distribuita e garantisce privacy e tranquillità. Le tre camere offrono ambienti confortevoli e adattabili alle diverse esigenze della famiglia, mentre i due bagni assicurano praticità nella vita di tutti i giorni.
L’abitazione è dotata di soluzioni impiantistiche moderne pensate per garantire il massimo benessere abitativo. Il riscaldamento a pavimento assicura una diffusione uniforme del calore e un elevato livello di comfort, mentre la climatizzazione autonoma consente di mantenere sempre la temperatura ideale in ogni stagione.
La posizione è particolarmente interessante: l’immobile si trova in una zona residenziale tranquilla e ben servita, comoda ai principali servizi e ai collegamenti.
Una casa nuova, elegante e pronta da vivere, ideale per chi cerca spazi moderni e una grande terrazza da vivere ogni giorno.
Leggi tutto
Leggi meno
Caratteristiche
Check-in: 15:00
Check-out: 10:00
Occupazione standard: 1
Occupazione max.: 1
Piano: 1°
Ascensore: Si




