€ 270.000

Rif 1403 Piazza Mazzini

Appartamento - Padova

Descrizione

4 camere da letto
2 bagni
185 m2
1° piano
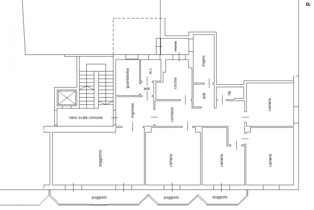
Rif 1403 Piazza Mazzini: Proponiamo in vendita un immobile ideale per investimento a reddito, particolarmente indicato per la locazione a studenti, grazie alla posizione strategica e alle ampie metrature.

L’appartamento si trova al primo piano di una palazzina situata in zona comoda a tutti i servizi, a breve distanza dal centro universitario e dalla stazione ferroviaria, caratteristiche che lo rendono particolarmente attrattivo per il mercato degli affitti studenteschi.

La distribuzione attuale prevede ingresso, soggiorno, cucina, quattro camere da letto, due bagni, un ripostiglio, una stanza guardaroba, poggioli, terrazza e cantina, offrendo spazi generosi e facilmente modulabili. L’immobile si presta a una ristrutturazione mirata, con la concreta possibilità di realizzare 6 o 7 camere da letto e 3 o 4 bagni, ottimizzando così la redditività.

A seguito dell’intervento, la resa stimata va dal 9,5% all’11%, con gestione del nostro partner Youniversityrooms, rendendo questa soluzione particolarmente interessante per investitori che desiderano valorizzare un immobile attraverso una gestione strutturata della locazione a studenti.

Un’opportunità pensata per chi cerca un investimento con forte potenziale di crescita, in una delle tipologie più richieste e stabili del mercato locativo.

Leggi tutto

Leggi meno

Galleria

Caratteristiche

Check-in: 15:00

Check-out: 10:00

Occupazione standard: 1

Occupazione max.: 1

Piano: 1°

Ascensore: Si

Dotazioni

Riscaldamento centralizzato
Terrazza

Località